مقدمة: تلبية احتياجات معالجة الدواجن الحديثة
في سوق معالجة الدواجن الذي يشهد تنافسية متزايدة، لم يعد الحجم هو العائق الوحيد. لقد أصبحت الاستجابة السريعة، والإنتاج المرن، والتحكم في مخاطر الاستثمار احتياجات أساسية للمسالخ الصغيرة والمتوسطة الحجم والعلامات التجارية المباشرة من المزارع. لكن خطوط الذبح التقليدية واسعة النطاق تتطلب استثمارات ضخمة وظروف موقع صارمة وتركيبًا معقدًا، بينما تعاني الورش اليدوية من انخفاض الكفاءة وعدم اتساق الجودة، مما لا يلبي متطلبات سلامة الغذاء الحديثة ومتطلبات السوق.
لمعالجة هذا التحدي في الصناعة، تستفيد NPW من سنوات الخبرة التقنية لتقديم خط ذبح دواجن مدمج ومعياري مبتكر وقابل للتخصيص بعمق. هذا ليس مجرد نسخة مصغرة من خط إنتاج كبير ولكنه حل ذكي ومتكامل مصمم من البداية للمرونة والقدرة على التكيف – مما يجعله الخيار الأمثل للمستخدمين ذوي السعة الصغيرة والمتوسطة الذين يسعون إلى ترقيات الأتمتة والإنتاج الموحد.
1. قدرات التخصيص الأساسية: موقعك، سعتك وتخطيطك
نحن ندرك أنه لا يوجد مسلخان متماثلان تماماً. يبدأ حلنا بالتواصل العميق والتخصيص الدقيق.
1.1 مطابقة مرنة للسعة لاستثمار مستهدف
- نسخة أساسية 300 طائر/ساعة: مناسبة لمزارع المجتمع، العلامات التجارية الفاخرة، أو الشركات الناشئة التي تعالج آلاف الطيور يوميًا. عتبة استثمار منخفضة مع نتائج سريعة.
- نسخة قياسية 500 طائر/ساعة: تلبي احتياجات معظم المسالخ الصغيرة والمتوسطة والتعاونيات، موازنة الكفاءة والاستثمار مع فترة سداد قصيرة.
- نسخة محسنة 800 طائر/ساعة: مصممة للمؤسسات ذات الطلبات المستقرة وإمكانات النمو، تقدم قدرة قريبة من خطوط السعة المتوسطة مع السماح بمساحة للتوسع المستقبلي.
1.2 تحسين المساحة ومرونة التخطيط
لم تعد المعدات كتلة ثابتة، بل هي وحدات ذكية مخصصة لورشة العمل الخاصة بك:
- تخصيص الأبعاد: يمكن تعديل أبعاد المعدات الأساسية (مثل خزانات السلق، خزانات التبريد المسبق)، وارتفاع الخط العلوي، وطوله لتناسب المساحات غير المنتظمة أو الضيقة.
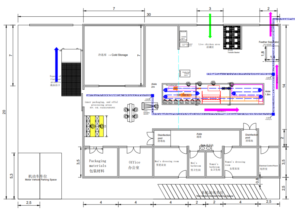
- إعادة تكوين التخطيط: من الترتيب المستقيم إلى الترتيب على شكل حرف L أو حتى حرف U، نعيد تخطيط وضع المعدات بناءً على تدفق المواد الخاص بك (من استقبال الطيور الحية إلى تخزين المنتج النهائي) لتحقيق أقصى كفاءة في بيئة العمل.
- وحدات مخصصة للحاويات: نقدم تصاميم وحدات قياسية بحاوية 20 قدمًا و40 قدمًا. يتم تجميع خط الإنتاج الأساسي مسبقًا واختباره وشحنه في حاويات. في الموقع، يتم توصيله بسرعة مثل “القطع البنائية”، مما يقلل بشكل كبير من تعقيد ووقت التثبيت، خاصة في المناطق ذات البنية التحتية المحدودة.
1.3 مزايا استخدام المساحة بالتفصيل

1.3.1 كفاءة مساحية ثورية
مقارنةً بخطوط الذبح التقليدية، يحقق خط NPW المدمج أقصى كفاءة للمساحة من خلال ثلاثة تصميمات مبتكرة:
- وحدة حاوية 20 قدمًا: الحد الأدنى للتكوين 6×3 أمتار، تشغل 18 مترًا مربعًا فقط، وتدعم 300 طائر/ساعة.
- وحدة حاوية 40 قدمًا: التكوين القياسي 12×3 أمتار، تشغل 36 مترًا مربعًا، وتدعم 500-800 طائر/ساعة.
- تكامل الارتفاع: ارتفاع موحد يبلغ 2.2 متر يناسب ارتفاعات سقف الورش المختلفة.
1.3.2 خيارات تخطيط مرنة
- تخطيط خط مستقيم: مثالي للورش الطويلة الضيقة؛ ترتيب المعدات المتسلسل يضمن سلاسة اللوجستيات.
- تخطيط على شكل حرف L: يناسب المساحات ذات الزوايا القائمة، مما يزيد من استخدام الزوايا.
- تخطيط على شكل حرف U: يقلل من حركة المشغلين، ويعزز الكفاءة.
1.3.3 مزايا التحديث للمنشآت القائمة
- لا حاجة للبناء الجديد؛ تستخدم البنية التحتية الحالية.
- متطلبات أساسية مبسطة تقلل تكاليف الهندسة المدنية.
- اتصالات مرافق مرنة تتكيف مع ظروف الموقع المختلفة.
1.3.4 فوائد متسلسلة لتوفير المساحة
- تقليل تكاليف اللوجستيات: تقصير مسافة التعامل مع المواد بنسبة 30%.
- توفير الطاقة: تقليل مساحة الورشة يخفض استهلاك الطاقة للتدفئة/التكييف/الإضاءة.
- كفاءة الإدارة: التخطيط المركزي يقلل حركة المشرفين.
2. تصميم متكامل: تركيب مبسط، نشر سريع
“النشر السريع” هو مبدأ أساسي آخر في تصميمنا.
2.1 تجميع مصنعي مدمج مسبقًا
يتم دمج أنظمة التحكم الكهربائية للخط بأكمله، والدوائر الهوائية، وخطوط أنابيب المياه واختبارها في المصنع. تحصل على وحدة مجمعة مسبقًا وكاملة الوظائف، وليس مجموعة من الأجزاء المنفصلة.
2.2 إعداد موقع مبسط
يتم تبسيط العمل في الموقع بشكل كبير إلى: تحديد موقع المعدات، والتوصيل المتبادل للوحدات، وربط المرافق. عادةً، يمكن إكمال التركيب والتشغيل في غضون أيام، مما يقلل الوقت من قرار الاستثمار إلى الإنتاج بأكثر من 60%.
2.3 مساحة أرضية مضغوطة
يقلل التصميم المحسن من المساحة الأرضية للخط بنسبة 30-50% مقارنةً بالخطوط التقليدية ذات السعة المماثلة، مما يخفض بشكل كبير تكاليف إيجار أو بناء المبنى.
3. تغطية عملية كاملة تضمن جودة المنتج
مدمج ولكنه شامل، يغطي هذا الخط جميع عمليات الذبح الأساسية الحديثة:
- التعليق والصعق: التعامل اللطيف والصعق الإنساني يضمنان رعاية الحيوان وجودة اللحم.
- السلق ونزع الريش: خزانات سلق مخصصة مقترنة بنازعات ريش فعالة تحقق إزالة الريش بنسبة >99% مع الحفاظ على سلامة الجلد.
- إزالة الأحشاء والغسيل: خطوط إزالة الأحشاء القابلة للتعديل تلبي أعماق المعالجة المختلفة، مقترنة بتنظيف عالي الكفاءة للنظافة.
- التبريد المسبق والحفظ: التبريد المسبق المتكامل يقلل درجة حرارة الذبيحة الأساسية بسرعة إلى مستويات آمنة، مما يطيل العمر الافتراضي.
4. الترقية الأساسية: ربط الورش اليدوية والإنتاج الذكي
للمسالخ الصغيرة التي تهدف إلى الانتقال من العمل اليدوي إلى تعزيز القدرة التنافسية، يمثل هذا الخط المسار الأكثر فعالية من حيث التكلفة للترقية:
- تقليل الاعتماد على العمالة: تقلل الأتمتة العمالة المباشرة بنسبة 50-70% وتقلل الإجهاد البدني.
- تحسين اتساق المنتج: تضمن المعالجة الموحدة جودة ومواصفات موحدة، مما يدعم تطوير العلامة التجارية.
- الامتثال للوائح: تلبي مواد وتصميمات المعدات معايير سلامة الأغذية، مما يساعد في الحصول على الشهادات والوصول إلى الأسواق الراقية (مثل محلات السوبر ماركت، المطاعم).
5. عائد استثمار واضح
بالنسبة لخط مخصص بسعة 500 طائر/ساعة، والذي يعمل بكامل طاقته، يتم استرداد الاستثمار الأولي عادةً خلال 1-2 سنوات. توفر الفوائد الشاملة الناتجة عن تحسينات الكفاءة، وتقليل الهدر، ورفع قيمة المنتج نموًا مستدامًا.
5.1 تحليل متعمق لعائد الاستثمار
5.1.1 تفصيل الاستثمار الأولي (مثال 500 طائر/ساعة)
- المعدات الرئيسية: 48,000 دولار
- التركيب والتشغيل: فقط 5% من تكلفة الخط التقليدي
- الأعمال المدنية: مخفضة بشكل كبير أو ملغاة
- إجمالي الاستثمار: أقل بنسبة 35-40% من الخطوط التقليدية
5.1.2 توفير تكاليف التشغيل
- تكاليف العمالة: تستبدل الأتمتة 60% من العمالة، بتوفير 10,000 دولار/سنة
- المرافق: يقلل التصميم الموفّر للطاقة استهلاك المياه بنسبة 40%، والكهرباء بنسبة 30%
- الصيانة: يخفض التصميم المعياري تكاليف الصيانة بنسبة 25%
5.1.3 مكاسب الكفاءة والقيمة
- معدل استخدام السعة: يزيد من حوالي 70% إلى أكثر من 90%
- تحسين الإنتاجية: ترفع التوحيد القياسي إنتاجية المنتج بنسبة 2-3%
- علاوة الجودة: تزيد الإنتاجية القياسية سعر البيع بنسبة 5-8%
5.2 فوائد خفية وقيمة طويلة الأجل
5.2.1 التخفيف من المخاطر
- استثمار مرحلي ممكن مع التصميم المعياري، مما يقلل المخاطر الأولية
- النشر السريع يقصر فترة الالتزام الرأسمالي
- سعة قابلة للتوسع تتكيف مع نمو الأعمال
5.2.2 القيمة الاستراتيجية
- إطلاق الإنتاج السريع يستغل فرص السوق
- المنتجات الموحدة تعزز صورة العلامة التجارية
- شهادات التصدير تفتح الأسواق الدولية
5.3 دراسة حالة النجاح: عملي غانا
قبل: ذبح يدوي، 1000 طائر/يوم، 20 عامل
بعد: خط NPW المدمج 500 طائر/ساعة، 4000 طائر/يوم، 8 عمال
فترة الاسترداد: 22 شهرًا
الوضع الحالي: توسع إلى خطين، تصدير إلى الاتحاد الأوروبي



6. تحرّك الآن: ابدأ رحلة التخصيص الخاصة بك
سواءً كنت تمتلك منشأة قائمة ذات مساحات محدودة أو تخطط لمركز معالجة جديد، فإن خط الذبح المدمج والمعياري من NPW يقدم الحل الأمثل. قم بتزويدنا بالسعة المستهدفة وتخطيط الموقع والأبعاد الخاصة بك، وسيقوم فريقنا الهندسي بتقديم خطة تخطيط مخصصة وتحليل فوائد استثمارية — مجانًا.
اتصل بنا لجلب الأتمتة المرنة والفعالة إلى ورشة عملك — بدءًا من غد.
تمكّن خط ذبح الدواجن المدمج من NPW من إجراء ترقيات الأتمتة الممكنة للمسالخ الصغيرة والمتوسطة من خلال تحسين استخدام المساحة وتعظيم الفوائد الاقتصادية. فهو يعالج قيود المساحة مع تقديم عائد استثمار سريع وخلق قيمة مستدامة.
الإجراءات الفورية التي نقدمها:
- خطط تخطيط مخصصة بناءً على موقعك الفعلي
- جداول حسابية مفصلة لعائد الاستثمار
- حالات مرجعية من عملاء مشابهين
- دعم تمويلي ودفعات تقسيطية
اختر NPW — استفد بأقصى قيمة من كل متر مربع!